Umbau Altstadthaus Baden
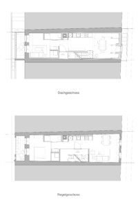
Das über 700 Jahre alte und zur ehemaligen Stadtmauer gehörende Gebäude wurde bis auf die Grundstruktur rückgebaut, ertüchtigt und neu ausgebaut. Dabei wurde Sorge getragen, bestimmende Elemente des Altbaus in den neuen Ausbau zu integrieren. Es entstanden vier neue Wohnungen in den Obergeschossen und ein Laden im Erdgeschoss welcher die Rathausgasse bespielt.
























