Wettbewerb Erweiterung Kantonsschule Baden
ARGE Heggli-Peter
Städtebau
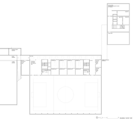
Auf dem Campus der Schulanlage schliesst das neue Gebäudepaar aus hohem Schulhaus und flacher Turnhalle an östlichster Stelle das bestehende Gebäudeensemble aus hohen und flachen Bausteinen im Sinne Fritz Hallers ab.
Genauso wie die neuen Schulbauten in ihrer städtebaulichen Setzung eine klare Fortführung der durch den Architekten Haller begonnenen Baustruktur darstellen, so sind die neuen Zugangsbauten in Nordrichtung ebenfalls als adressbildender Abschluss zur Wettingerstrasse zu lesen. So wie das neue Schulhaus sich als eine Verlängerung der punktuellen Hauptvolumen versteht, so steht die neue Turnhalle in der Verlängerung der bestehenden Turnanlagen, welche neu auch direkt miteinander verbunden sein werden.
Architektur
Der Neubau adaptiert die Ideen Fritz Hallers und interpretiert diese in nachhaltigen Materialien und Oberflächen neu. Die architektonische Nähe zu Haller wird durch das konstruktive, gerüstartige Spiel mit den Wandscheiben gesucht, die konstruktive Reinheit und Sichtbarmachung des Materials sind sekundär. Die radikal einfache Architektur findet auch in den Innenräumen seine Entsprechung. Die Zusammengehörigkeit der Einzelklassen wird besonders am grosszügigen, frei möblierbaren Vorbereich deutlich. Diese Zone dient dem gemeinsamen Lernen. Tische können wie in einem Klassenraum frei angeordnet und Lernzonen durch Vorhänge abgegrenzt werden.














